TenderMap logo
Categories icon Private indkøb arrow icon Privat sektor arrow icon Beboelseshjem / Plejehjem
Share icon

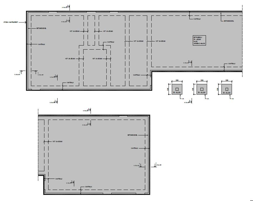
Anbudsförfrågan Betongplatta

Location icon Stockholmsvägen 205, 187 36 Täby, Sweden
profile icon profile icon profile icon profile icon profile icon profile icon profile icon profile icon profile icon
Individuel pris SEK 1.00
flag icon

Sverige

Vis på kort

Vis PDF - undefined Vis PDF - undefined

Anbudsförfrågan Betongplatta

Det vore bra om offerten kan delas upp per moment, till exempel:

  • L-form
  • Cellplast – läggning samt radonspärr
  • Armering
  • Sockel
  • Betongingjutning etc.

Jag bifogar de senaste ritningarna som underlag. Observera dock att de fortfarande kan komma att uppdateras.

I offerten ber vi er även ange:

  • planerad utförandetid
  • timpris för eventuella ÄTA-arbeten
  • vilka verktyg och vilken utrustning som ingår i ert erbjudande

Projektstart är planerad till Q2 2026.

Kategori :

Private indkøb / Privat sektor / Beboelseshjem / Plejehjem
Kunde :
Darmex AB
Sidste dato for indgivelse af tilbud :
2026-03-31